- 価格
- 3,880万円
- 種別
- 新築戸建
- 間取
- 4LDK
-
- 所在地
- 愛知県尾張旭市東印場町二反田
- 交通
- 名鉄瀬戸線 旭前駅 徒歩1200m 徒歩15分
物件詳細
| 築年月 | 2026/04 | 新築/中古 | 新築・未入居 |
|---|---|---|---|
| 面積 | 107.64m² | 計測方式 | |
| バルコニー | 向き | 南 | |
| 建物階数 | 地上2階 | 部屋階数 | |
| 部屋/区画番号 | 総戸/区画数 | 5 | |
| 建物構造 | 木造 | ||
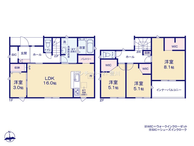
| 間取内容 | LDK16.0畳 1階 洋室3.0畳 1階 洋室8.1畳 2階 洋室5.1畳 2階 洋室5.1畳 2階 | ||
| 駐車場 | 取引態様 | 仲介 | |
| 引渡/入居時期 | 現況 | ||
| 地目 | 宅地 | 用途地域 | 無指定 |
| 都市計画 | 市街化調整区域 | 地勢 | 平坦 |
| 土地面積 | 312.41m² | 土地面積計測方式 | 実測 |
| 私道負担面積 | 1.33m² | ||
| 建ぺい率 | 60% | 容積率 | 200% |
| 土地権利 | 所有権 | 接道状況 | 一方 |
| 接道方向1 | 北 | 接道間口1 | |
| 接道種別1 | 公道 | 接道幅員1 | 3.23m |
| 国土法届出 | 不要 | ||
| 周辺環境 |
尾張旭市立渋川小学校 尾張旭市立西中学校 |
||
| 設備・条件 | |||
| 物件番号 | 082401-28295 | ||
Loading...
※物件掲載内容と現況に相違がある場合は現況を優先と致します。
お問い合わせはこちらからお寄せください
お電話からのご予約・お問い合わせ
TEL0565-36-0267
営業時間09:00~18:00
定休日 水曜日
WEBからのご予約・お問い合わせ

































